-
-
-
Tổng tiền thanh toán:
-
Model ZLYJ 200
Công suất đầu vào 5.5kw - 350kw
Điện áp 380v 50Hz IP55
Hộp giảm tốc máy đùn nhựa ZLYJ 200 hay còn gọi là hộp số máy đùn, động ZLYJ 200 động cơ giảm tốc máy đùn ZLYJ 200,
Giới thiệu
Hộp số máy đùn nhựa ZLYJ 200 là một loại bánh răng cứng có độ chính xác cao được thiết kế đặc biệt cho máy đùn nhựa . Hộp số máy ép đùn nhựa ZLYJ 200 như một tài liệu tham khảo cho thiết kế, các sản phẩm áp dụng thép hợp kim carbon có độ bền cao cho bánh răng và trục bánh răng, để đáp ứng độ chính xác của bánh răng ở Cấp 6 (GB / T 10095) và độ cứng của sườn răng HRC54 ~ 62. Một ổ bi đỡ lực đẩy lớn được gắn ở mặt trước của trục đầu ra để chịu lực đẩy lớn.
Hộp giảm tố máy đùn nhựa : Mô-men xoắn đầu ra xoắn ốc: 800 ~ 1003694 N / M Công suất định mức: 5,5 ~ 350KW Tốc độ đầu vào: 600-1500R / M Tốc độ đầu ra: 30-188R / M lắp Vị trí: Màu ngang (gắn chân) hoặc Màu dọc (gắn mặt bích): theo mô hình của khách hàng: sê-ri ZLYJ 200
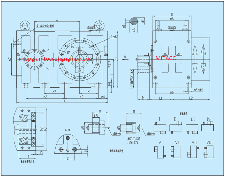
Bản vẽ hộp giảm tốc máy đùn nhựa ZLYJ 200



Hộp giảm tốc máy đùn nhựa có những size như sau : ZLYJ112 / ZLYJ112 / ZLYJ133 / ZLYJ146 / ZLYJ173 / ZLYJ200 / ZLYJ225 / ZLYJ250 / ZLYJ280 /
ZLYJ315 / ZLYJ330 / 375 / ZLYJ420 / ZLYJ450 / ZLYJ630 / ZSYJ450 / ZSYJ560 / ZSYJ630



